Περιγραφή ακινήτου

Η τριώροφη οικοδομή κατοικιών με στέγη και δώμα βρίσκεται στην οδό Ηρας 5 στην περιοχή Γαργηττός ΙΙ του Δήμου Γέρακα. Βρίσκεται σε κομβικό σημείο με εύκολη πρόσβαση στην Αττική οδό , συγκοινωνίες, σχολεία, αθλητικά κέντρα, αγορά. Αποτελείται από τέσσερα διαμερίσματα ενεργειακής κατηγορίας Α+ τα οποία προσφέρουν όλες τις σύγχρονες ανέσεις και παροχές. Στην περιοχή υπάρχει δίκτυο αποχέτευσης.

Επιπλέον χαρακτηριστικά

  • Αντλία θερμότητας ψύξη – θέρμανσης, με ενδοδαπέδια θέρμανση και ψύξη με fancoils σε κάθε χώρο της κατοικίας
  • Κουφώματα αλουμινίου με θερμοδιακοπή, ενεργειακά κρύσταλλα και ηλεκτρικά ρολά
  • Τοποθέτηση θερμοπρόσοψης σε όλο το εξωτερικό κέλυφος του κτιρίου
  • Πλήρως εγκατεστημένο σύστημα συναγερμού
  • Κεντρική και δορυφορική κεραία, καθώς και καλωδίωση Ethernet
  • Ηλιακός θερμοσίφωνας και μπόιλερ
  • Τζάκι
  • Φωτισμός νέας τεχνολογίας Led
  • Ισόγειες κλειστές θέσεις στάθμευσης - αποθήκες με αναμονή για εγκατάσταση σταθμού φόρτισης ηλεκτρικού οχήματος

Κατόψεις

Ισόγειες θέσεις πάρκινγκ – αποθήκες

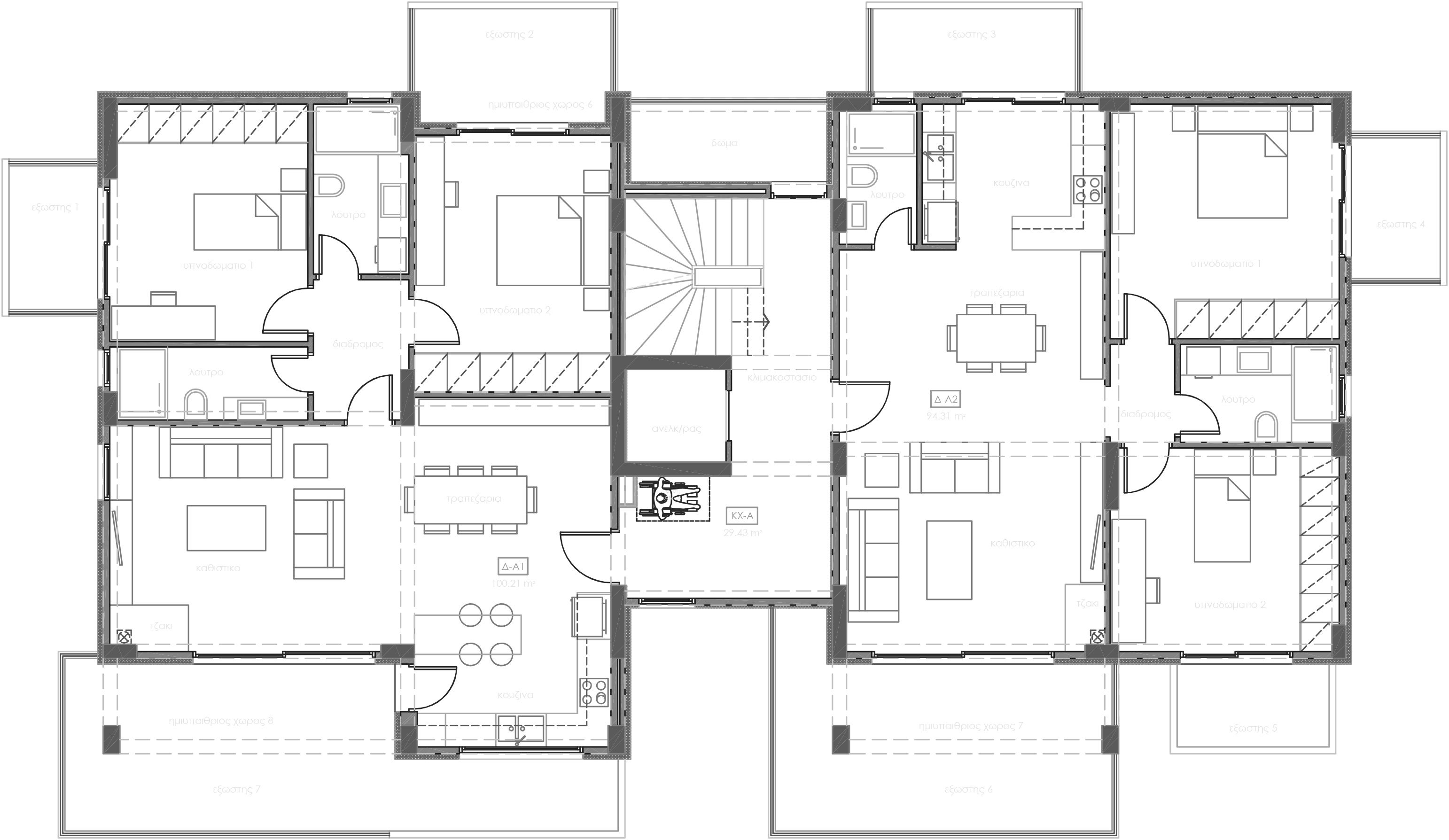
  • Διαμέρισμα Α1 εμβαδού 100,21 τ.μ. αποτελούμενο από δύο υπνοδωμάτια, δύο λουτρά, κουζίνα σε ενιαίο χώρο μαζί με το σαλόνι και την τραπεζαρία.
  • Διαμέρισμα Α2 εμβαδού 94,31 τ.μ. αποτελούμενο από δύο υπνοδωμάτια, δύο λουτρά, κουζίνα σε ενιαίο χώρο μαζί με το σαλόνι και την τραπεζαρία.
  • Διαμέρισμα Α1 εμβαδού 100,21 τ.μ. αποτελούμενο από δύο υπνοδωμάτια, δύο λουτρά, κουζίνα σε ενιαίο χώρο μαζί με το σαλόνι και την τραπεζαρία.
  • Διαμέρισμα Α2 εμβαδού 94,31 τ.μ. αποτελούμενο από δύο υπνοδωμάτια, δύο λουτρά, κουζίνα σε ενιαίο χώρο μαζί με το σαλόνι και την τραπεζαρία.
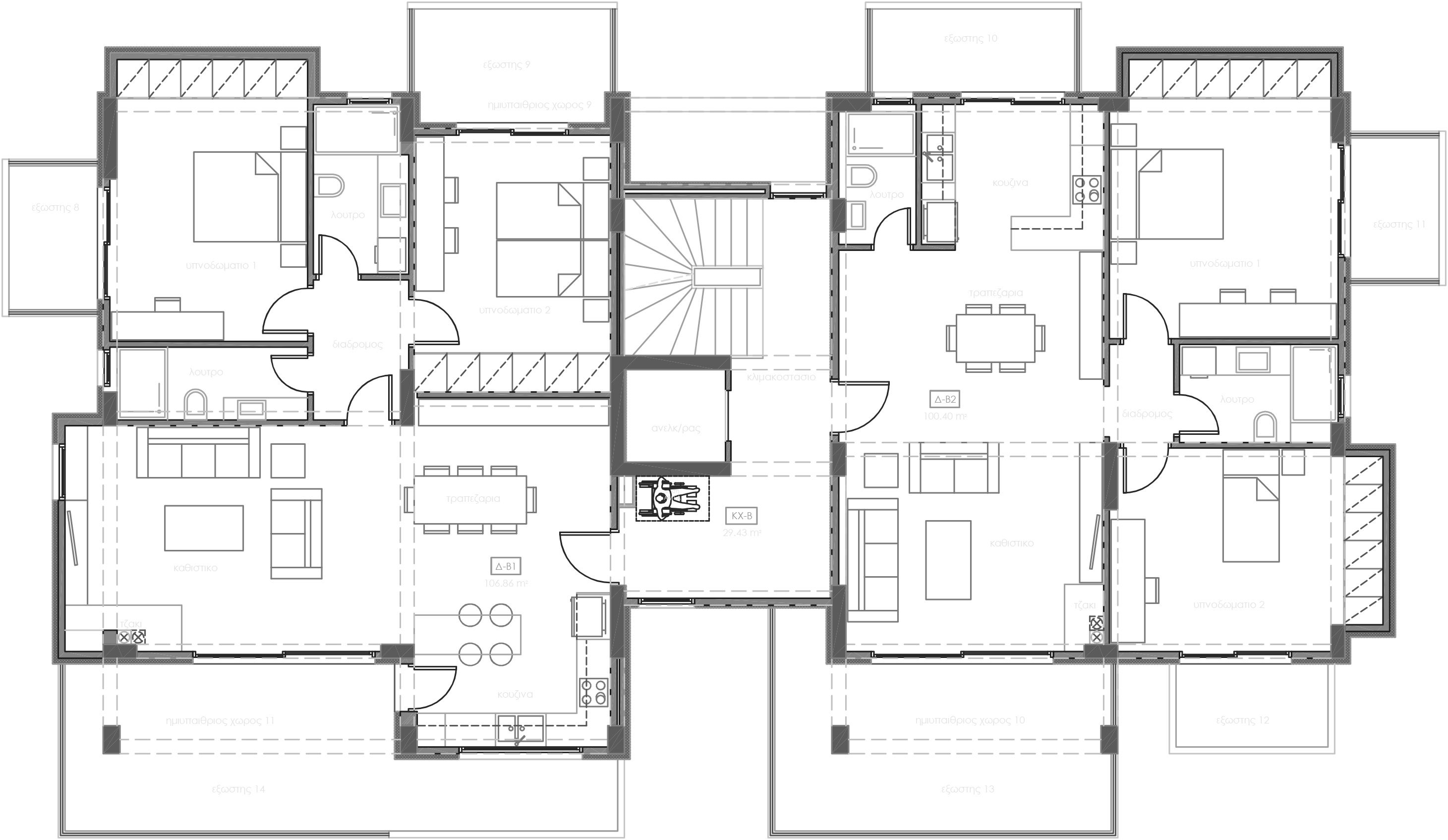
  • Διαμέρισμα Β1 εμβαδού 106,86 τ.μ. αποτελούμενο από δύο υπνοδωμάτια, δύο λουτρά, κουζίνα σε ενιαίο χώρο μαζί με το σαλόνι και την τραπεζαρία.
  • Διαμέρισμα Β2 εμβαδού 100,40 τ.μ. αποτελούμενο από δύο υπνοδωμάτια, δύο λουτρά, κουζίνα σε ενιαίο χώρο μαζί με το σαλόνι και την τραπεζαρία.
  • Διαμέρισμα Β1 εμβαδού 106,86 τ.μ. αποτελούμενο από δύο υπνοδωμάτια, δύο λουτρά, κουζίνα σε ενιαίο χώρο μαζί με το σαλόνι και την τραπεζαρία.
  • Διαμέρισμα Β2 εμβαδού 100,40 τ.μ. αποτελούμενο από δύο υπνοδωμάτια, δύο λουτρά, κουζίνα σε ενιαίο χώρο μαζί με το σαλόνι και την τραπεζαρία.

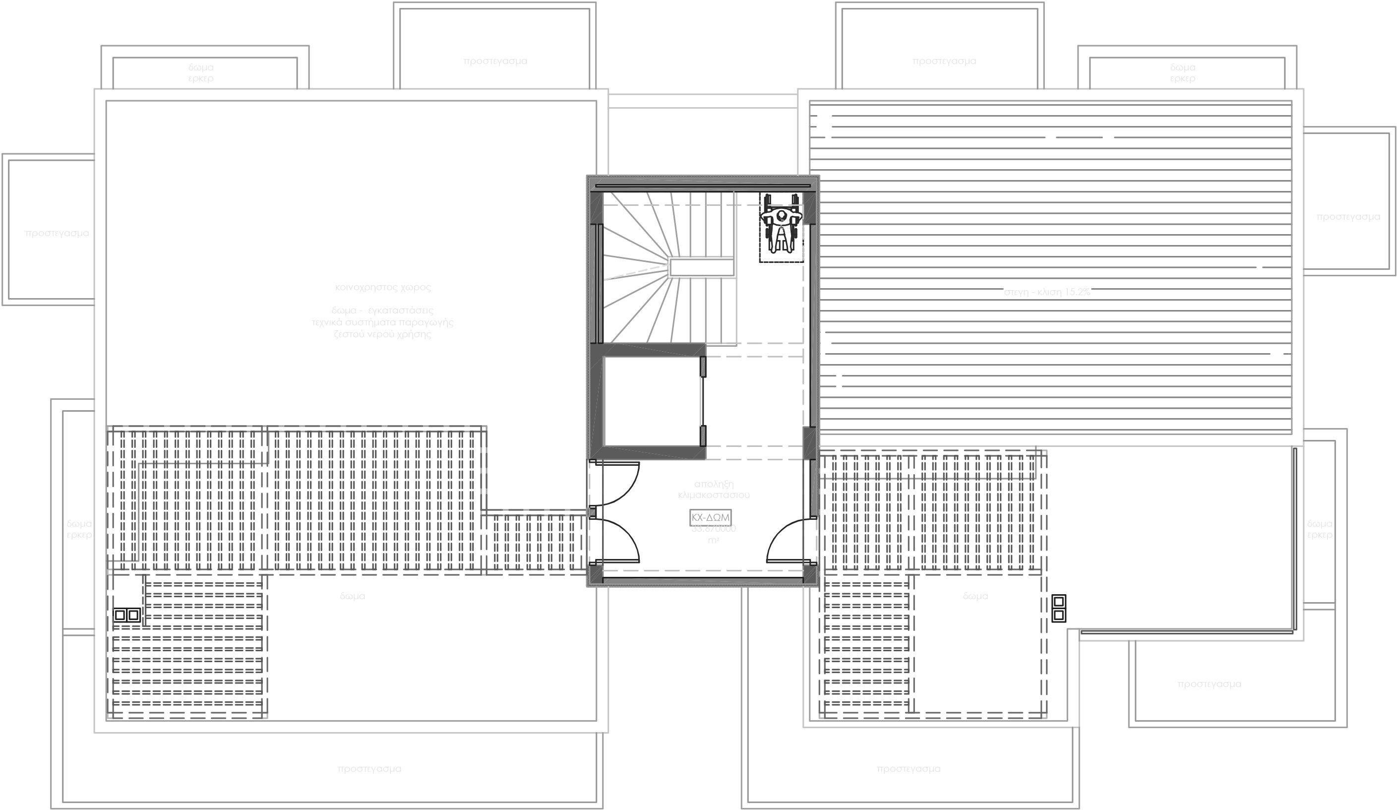
Στο δώμα του κτιρίου τα διαμερίσματα Β1 και Β2 διαθέτουν χώρους αποκλειστικής χρήσης.